
Roof areas located directly above large wall openings, such as bay doors and loading docks, can be subject to significantly higher wind uplift pressures, especially when these areas are open during a wind event. These increased pressures place additional stress on the roof membrane system, which can cause potential damage if not properly addressed.
To ensure long-term performance and compliance with IKO Diamond Shield Limited Warranty requirements, IKO Commercial specifies enhanced membrane securement in these areas to resist higher wind uplift forces.
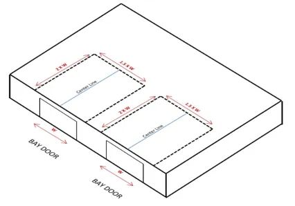
Determining the Enhancement Zone
According to ASCE 7, a wall is considered to have a large opening when the combined area of openings exceeds 10% of the total wall area. The enhancement zone above the large opening is defined as follows:
- Extends inward from the roof edge a distance equal to 2 times the width of the opening, and
- Extends laterally 1.5 times the width of the opening, centered on the opening (see diagram below).
The enhancement method will vary depending on the InnoviTPO membrane system being installed on your roof.
Securement Enhancement by System Type
Each InnoviTPO system has specific attachment requirements within the enhancement zone to manage higher wind uplift forces. The guidelines below outline what is required for each system type.
Mechanically Attached Systems
- Membrane Securement: Install additional perimeter half-sheets throughout the entire enhancement area above the large opening.
- Example: For a 10-foot-wide opening, the enhancement zone extends 20 feet into the roof field and 15 feet across, centered over the opening. This requires installing four 5-foot-wide perimeter half-sheets, each extending 15 feet above the opening.
Adhered Systems
- Insulation Securement: Insulation boards located within the enhancement area must be fastened at the perimeter zone securement rate. Boards partially within the enhancement zone must also follow the perimeter rate.
- Membrane Securement: Install peel stops along the roof edge perimeter of the enhancement zone.
- Peel stops consist of an additional row of InnoviFast HD Fasteners and InnoviFast HD Seam Plates, spaced at a maximum of 12 inches on center.
- Cover the fasteners with an 8-inch TPO cover strip, heat-welded and sealed around all edges.
- The peel stop must extend the full length of the enhancement area and be positioned 12–24 inches from the roof edge (see diagram below).
Induction Welded Systems
- Membrane Securement: Within the enhancement area, induction weld the membrane using perimeter zone securement rates.
- Insulation Securement: Insulation boards partially or fully within the enhancement zone must be fastened using perimeter zone securement rates.
- Peel Stops: Install peel stops at the roof edge perimeter of the enhancement zone using InnoviFast HD Fasteners and InnoviWeld Induction Plates, spaced a maximum of 12 inches on center. As with adhered systems, the peel stop must run the entire length of the enhancement area and be positioned 12-24 inches from the roof edge (see diagram below).
Note: Ballasted systems are not acceptable for buildings with bay doors and loading docks.
For more information regarding membrane and insulation attachment, please refer to the IKO InnoviTPO Attachment Guide or contact IKO Technical Services.


